Vítejte v GEMA Shop - váš odborník na vytápění, solární a sanitární techniku ​​již od roku 1991. Osobně vám poradíme a nabídneme technická řešení, která skutečně fungují.
  • rychlé odeslání

  • Bezplatná pomoc a poradenství

  • Otevřeno 7 dní v týdnu

Anhaltinerring 17, 39439 Güsten

A.B.S.  |  SKU: HP12/16G

A.B.S. Silo na pelety Flexilo Standard

Jméno: A.B.S. Silo- und Förderanlagen GmbH

Adresa: Industriepark 100, 74706 Osterburken

E-mail: info@abs-silos.de

Webová stránka: https://abs-silos.de/

Evropský výrobce: Ano

Normální cena 19.190,00 kr
inkl. MwSt. Kostenloser Versand innerhalb Deutschland

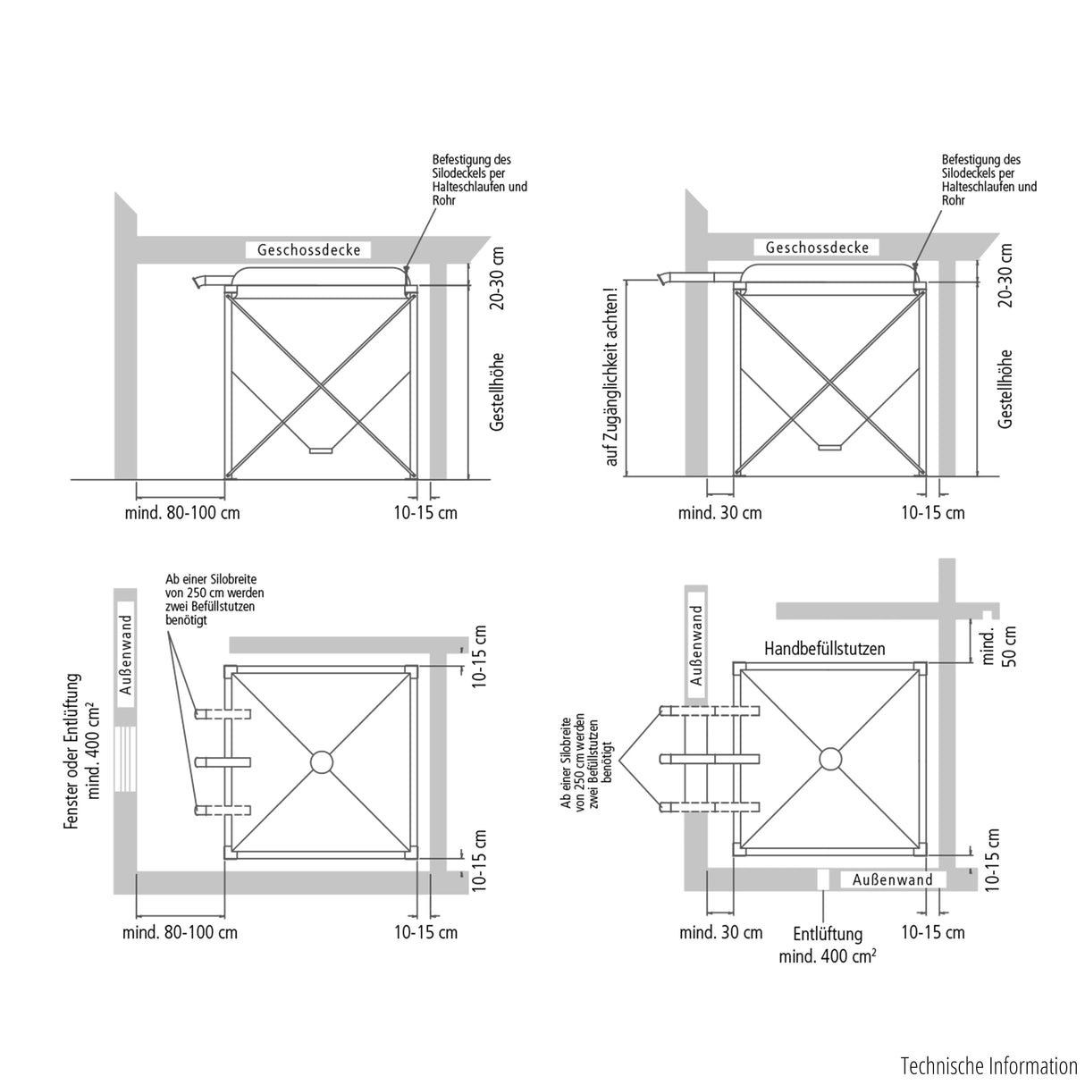
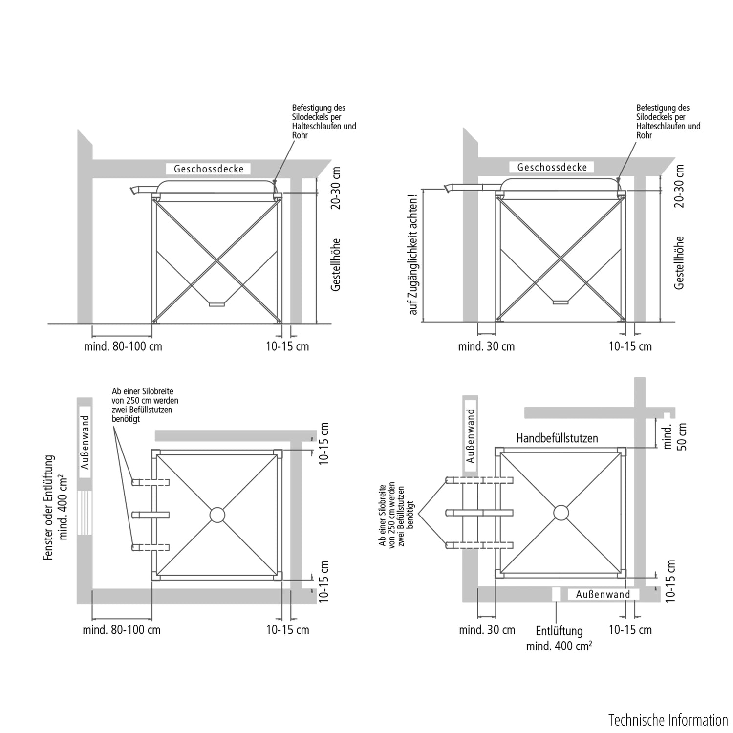
Rozměry rámu
Výška místnosti

Doručení a expedice

Doba zpracování je obvykle 1 pracovní den. Dodací lhůta balíkového zboží je 1-3 pracovní dny. U přepravovaného zboží je dodací lhůta 3-5 pracovních dnů. Dodací lhůty mimo Německo jsou odlišné.

Beschreibung

A.B.S. Silo na pelety Flexilo Standard – Klasika mezi sily na dřevěné pelety

Jiné velikosti a zakázkové velikosti k dispozici na vyžádání. do kontaktního formuláře

Popis produktu

Ten/Ta/To A.B.S. Peletové silo Flexilo Standard je osvědčené univerzální zařízení s klasickým designem a kuželovým látkovým výsypem. Tato konstrukce zaručuje bezpečné a rovnoměrné vysypávání pelet a je ideální pro spolehlivé vytápění vašeho domu i v nejchladnějších měsících.

Tento typ sila lze kombinovat s téměř jakoukoli odsávací jednotkou a díky své robustní a jednoduché konstrukci nabízí odolné řešení pro soukromé i komerční aplikace.

Technické údaje

Flexilo Standard je k dispozici ve velikostech s plnicí kapacitou až 9,4 tuny. Tento model má kuželový textilní výstup, je kompatibilní se všemi peletovými kotli a pyšní se snadnou údržbou. Typická dodací lhůta je 2–3 týdny.

Výhody

Klasický design v kombinaci s kuželovým textilním výstupem zajišťuje spolehlivé vypouštění pelet a minimalizuje jejich ucpávání. Díky vysoké kompatibilitě s různými odsávacími jednotkami je systém velmi všestranný.

Mezi další výhody patří rychlá montáž, nízké náklady na údržbu a možnost kaskádového zapojení více sil pro pokrytí většího rozsahu výkonu.

Montáž a instalace

Flexilo Standard je navrženo pro snadnou a časově úspornou montáž, která umožňuje rychlé uvedení sila do provozu. Odsávací a výtlačné přípojky lze připojit k téměř jakémukoli kotli, což zjednodušuje integraci do stávajících topných systémů.

Pro optimální funkci a dlouhou životnost doporučujeme odbornou instalaci zkušeným technikem, zejména pokud má být několik sil propojeno kaskádovitě.

Údržba a péče

Systém Flexilo je navržen pro snadnou údržbu a vyžaduje minimální údržbu. Pravidelné vizuální kontroly a zamezení vlhkosti ve skladovacím prostoru prodlužují životnost systému a zajišťují spolehlivé vypouštění.

V případě kontaminace nebo pro kontrolu vypouštěcího mechanismu obvykle postačí krátká kontrola; náhradní díly a servis jsou v případě potřeby rychle k dispozici.

Oblasti použití

Peletové silo je vhodné pro rodinné domy, bytové domy, komerční nemovitosti, farmy a komunální zařízení. Díky své flexibilitě velikosti a možností připojení jej lze použít v mnoha topných situacích.

Rozsah dodávky & servis

Dodávka zahrnuje látkové silo s kuželovým výtokem a montážní návod; v závislosti na objednávce jsou k dispozici samostatně další dávkovací jednotky nebo spirály pro kaskádová řešení. Dodací lhůta je obvykle 2–3 týdny.

Podpora výrobce a prodejce poskytuje poradenství ohledně výběru, plánování a montáže a v případě potřeby i dodávku náhradních dílů.

Doporučení

Ten/Ta/To A.B.S. Silo na pelety Flexilo Standard je ideální volbou, pokud hledáte osvědčené, flexibilní a cenově výhodné řešení pro skladování pelet. Pro vyšší požadavky na kapacitu se doporučuje kombinace několika sil do kaskády s kontinuální spirálou.

Pro individuální nabídku a poradenství ohledně vhodné velikosti a optimálního připojení k vašemu peletovému kotli kontaktujte svého specializovaného prodejce.

Rozsah dodávky

  • Silo vak s všitou přepážkou a inspekčním otvorem (ruční plnicí tryska)
  • Pozinkovaný ocelový rám jako zásuvný systém vč.Montážní materiál
  • Vhodný plnicí systém (standardní boční plnění)
  • Nosná konstrukce pro víko sila (trubka ½" musí být zajištěna na místě)
  • Návod k montáži
  • Bez odsávací jednotky

Platba a bezpečnost

Možnosti platby

  • American Express
  • Apple Pay
  • Bancontact
  • BLIK
  • EPS
  • Google Pay
  • iDEAL Wero
  • Klarna
  • Maestro
  • Mastercard
  • MobilePay
  • PayPal
  • Przelewy24
  • Shop Pay
  • Union Pay
  • Visa

Vaše platební údaje jsou zpracovávány bezpečně. Neuchováváme informace o kreditní kartě a nemáme přístup k informacím o vaší kreditní kartě.

Kontaktujte nás