Willkommen bei GEMA Shop – Ihrem Experten für Heizungs-, Solar- und Sanitärtechnik seit 1991. Wir beraten Sie persönlich und bieten technische Lösungen, die wirklich funktionieren.

Phone +49(0)39262 878720

E-mail: gemashop@gema-net.de

WhatsApp: +49(0)17660429928

  • fast shipping

  • Free help and advice

  • Hassle-free returns

  • Open 7 days a week

Anhaltinerring 17, 39439 Güsten

Open Mon-Thu 7am-5pm; Fri 7am-4pm; Sat 9am-12pm

A.B.S.  |  SKU: HP-FB18

Pelletilo flat floor including frame

Name: A.B.S. Silo- und Förderanlagen GmbH

Address: Industriepark 100, 74706 Osterburken

Email: info@abs-silos.de

Website: https://abs-silos.de/

European Manufacturer: Yes

Normal price 24.382,00 kr
inkl. MwSt. Kostenloser Versand innerhalb Deutschland

Frame
Room height

Delivery and shipping

The processing time is usually 1 working day. The delivery time for package goods is 1-3 working days. For freight forwarded goods, the delivery time is 3-5 working days. The delivery times outside Germany are different.

Description

Pellet silo FLAT BOTTOM including frame

A.B.S. Flat-bottom pellet silo - Attractively priced full-space solution - nothing more is possible

from A.B.S.

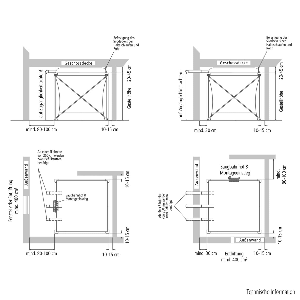
With the cube-shaped Flexilo® FLACHBOTTOM (Pat. No. 10 2009 033 230) from A.B.SBetween 80 and 90% of the pellet storage space is utilized. This allows for optimal and space-saving storage of wood pellets in almost any room, even with low ceiling heights.

Highlights of the Pellet silo

  • Highest filling volume: Up to 90% of the pellet storage space can be used
  • Easy and quick installation
  • Drain nozzle for manual removal as standard
  • Suction connections, assembly access, manual removal and filling line can be attached to each side according to your specifications
  • Special dimensions for every application

Scope of delivery Flexilo® FLACHBOTTOM HP 18 incl. frame

  • Silo bag with sewn-in baffle
  • Galvanized steel frame as a plug-in system including mounting material
  • Suitable filling system (side as standard)
  • Incl. extraction: 5 suction probes, manual switching unit and suction hoses inside
  • Supporting structure for silo lid (pipe must be provided on site)
  • Assembly instructions

Payment & Security

Payment options

  • American Express
  • Apple Pay
  • Bancontact
  • BLIK
  • EPS
  • Google Pay
  • iDEAL
  • Klarna
  • Maestro
  • Mastercard
  • MobilePay
  • PayPal
  • Przelewy24
  • Shop Pay
  • Union Pay
  • Visa

Your payment information is processed securely. We do not store credit card information and do not have access to your credit card information.

Contact us

5
reviews
See all reviews